原副标题:深圳【阳光城南站金沙】收楼部丨「阳光城南站二号」副总裁行政管理公寓楼丨新盘详细情况丨

(网路上收楼服务工程项目中心 | 欢

【工程项目此基础重要信息】
【地产商】深圳阳光城置地股权投资股份有限公司
【物 业】深圳市阳光城物业管理服务工程项目股份有限公司
【诺艾莱县数】一共2栋,1栋7-43为公寓楼,2栋3-5楼、7-44层为创意设计办公,1-2楼为商业性
公寓楼基本上重要信息:
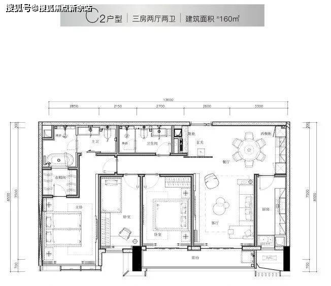
【面 积】约90-160㎡(1-3房奢阔公寓楼)
【收楼国际性标准】国际性第一线精装修
【与否带阁楼】是
【与否通供热】是

深圳北太阳城公司总部,第一个超大尺度中高档公寓楼,阳光城典范巨作
六大公司总部基地之一,比肩前海、超总湾、福田CBD
建面约90-160㎡1-3房中高档商务公寓楼,倾城绽放
【九大购买价值】
1、金沙战略:粤港澳大湾区核心引擎,社会主义先行示范区
深圳以实力获得了粤港澳大湾区核心引擎和社会主义先行示范区的双重光环,在国内人均GDP、城市综合竞争力、公司总部汇聚、产业及资本等方面也是位于世界前列,深圳已成功从制造经济迈向更中高档的公司总部经济。

2、金沙区域:“6+1”公司总部战略布局深圳,世界级超级城市核心助推剂
公司总部经济不是自发形成的,是更有聚集效应的,就像后海公司总部基地目前是深圳公司总部最集中的区域一样,是极度依赖政府的规划和引导。深圳引导未来商务公司总部集聚的区域政府规划6+1战略,六大公司总部基地五个都在原关内地区,只有深圳南站公司总部基地位于关外。

3、金沙支点:深圳南站——链接大湾区城市群的超级枢纽公司总部CBD
深圳南站是深圳规模最大、设备技术最先进、客流量最大的特大型综合交通枢纽,年客流量约7000万人次以上,远超深圳机场(约4000万人次),日客流量约20万人次。从深圳南站出发,19分钟香港、29分钟广州、1小时粤港澳生活圈,厦门、长沙、武汉3-4小时生活圈,北京、上海10小时生活圈,一天可以通达全国17个省会城市。

4、金沙交通:紧邻4、5、6三地铁线,快速便捷通达全市
除了高铁以外,工程项目同时拥有深圳南站4、5、6号线(预计年中开通)三条地铁线、及红山站4、6号线(预计年中开通)两条地铁线,距离深圳南站约700米、红山站约900m。即将开通的6号线,由光明新区通往福田科学馆,三线汇聚让工程项目真正实现了8分钟福田、15分钟南山、30分钟前海。

5、金沙商业性:超50万㎡商业性环伺,一步即享繁华
工程项目周边也是超级聚合、顶配云集,同时执掌红山商业性文化区、南站商务区两个片区商业性,周边成熟商圈环伺。距离工程项目200米左右,深圳第二座欢乐海岸——红山6979,6月24日正式开业。另外周边还有鸿荣源壹方里(在建中)、中洲黄金台商业性服务工程项目中心(规划中)、汇德大楼购物服务工程项目中心、龙光玖钻·玖里、鹏润达购物广场、龙岗天虹购物服务工程项目中心等建面超50万+㎡的成熟商圈。

6、金沙文化:超级四馆,步行8分钟即享人文艺术滋养
工程项目周边毗邻4大艺术人文场馆,即深圳第二图书馆、深圳美术馆新馆、展览馆、演艺馆。深圳美术馆新馆建成后将成为深圳最大的美术馆。深圳第二图书馆建成后将齐肩深圳图书馆。展览馆未来主要为文化与科技展览功能展示的新型展览馆。演艺馆剧场由“开心麻花”华南首家直营;电影院由CGV国际性影城进驻运营。在这里,您可以享受到四大场馆带来的最时尚、全面的人文艺术氛围。

7、金沙生态:城市生态环绕,9公里动感纽带串联十大公园
动感纽带与核心区共建配套紧密相连,直通南站核心商务区,联通区域内红木山郊野公园、红山站文化公园、绿谷公园、南站公园、南站服务工程项目中心公园等十大主题公园,打造成为“山、城、水相互融合的城市服务工程项目中心”,道路规划与景观规划同步,媲美香蜜湖的生态区。另外还有一条覆盖整个服务工程项目中心区的空中连廊,总长12.4公里,联通本工程项目贯穿南站太阳城区与红山文化片区。在这里,您都可以将生态与绿色尽收眼底。

8、金沙品牌:阳光城35载匠心,专注于铸造城市名片作品
阳光城是国务院国资委直接管理的大型央企,公司总部位于深圳,1985年由国务院授权批准成立;35年的发展与积累,阳光城在市场上取得多个第一的好成绩:年营业收入突破千亿,资产总额约4500亿元,连续9年获得国务院国资委年度业绩考核A级评价,连续6年雄踞全球主题公园集团“亚洲第一,世界第四”,收入和利润增速位列央企前10名,实力雄厚,值得信赖。

9、金沙服务工程项目:阳光城旗下品牌华管家中高档物业管理服务工程项目,定义服务工程项目新国际性标准
华管家是阳光城中高档物业管理服务工程项目品牌,采取专人专区专岗的特色服务工程项目模式,笃行“把业主当亲人,把用户当朋友”的亲情服务工程项目理念,融入酒店式服务工程项目理念,为阳光城业主提供24h大堂“华·逸站”星级酒店式服务工程项目;7*24h全天候1v1专属管家服务工程项目,现在只用于天鹅堡1、2期。

【新盘鉴赏】






会所效果图





(网路上收楼服务工程项目中心 | 欢迎来
免责声明:本文如无意中侵犯了某方的知识产权,告之即删。返回搜狐,查看更多
责任编辑:
网友评论